招 租 公 告

发布时间:2021-01-07浏览人数:

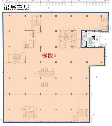
万融国际301室向社会公开招租,招租标段设为:A1标段万融国际大厦301室,共计出租面积约3385(以现场测量为准)。现公开出租区域,见下图:

一、竞租铺面平面布局图

1、万融国际大厦(A1标段)

1.jpg2.jpg

二、标的物情况

1、业态、底价及投标保证金额度:

标段编号

使用面积

约(㎡)

经营业态

竞租保证金

(人民币:万元)

承租月租金底价

(人民币:元//月)

承租月租金限价

(人民币:元//月)

A1标段

3385

酒店、教育培训

26.5

25.88

33.65

    

 

 

 

 

 

 

 

 

 

 

据时详见项目现场公告;竞拍以标段为单位,单位面积仅供参考,竞租前如有调整,以最终竞租前公布信息为准。13//月物业费另付。

2、租赁期限:八年;

3、租金单价递增方式:按合同年,前三年不递增,第四年起在第三年的基础上递增5%,第七年起在第六年的基础上递增5%

4、免租期:八个月,免租期内仅减免租金不减免物业费;

5、交付标准:现状交付,经营户承租期间承租范围内的所有能耗费由承租户自行承担;

6、租赁费用支付方式:季度支付,先付后用;

7竞租保证金具体金额详见上表;竞租保证金采用竞租人提供对应金额的银行本票。竞租人的本票出租方现场收取,中标的竞租人《租赁合同》签约后所缴纳的本票自动转为部分租赁保证金或租金,未中标的竞租人所缴纳的本票招租方于竞租结束后5个工作日内退还。

8、装修:中标商户的装修方案需通过出租方书面确认后方可进行装修施工。

9、退租撤场:经营期间承租方自行添置的可移动部分可撤除,其他设施未经招租方同意一律不得撤除;

10、其他:

1)承租方使用租赁场地经营而产生的各项国家税费由承租方自行负责。

2) 租赁期内商铺未经得产权方书面许可,承租方擅自转让、全部或部分转租、变更经营业态及范围的视为承租方单方面合同违约,出租方有权提前终止合同。

三、竞租规则

3.jpg

竞租规则:

1、竞租人报名需提供材料:竞租人身份证明、个人征信证明、《竞租报名表》、《竞租承诺函》、银行本票。品牌商户需提供品牌证明材料(品牌商标证明或品牌授权书选址意见书); 报名人需自行解决与该场地原租赁方的交接事宜,并签署《承诺书》。

2、竞租人资格界定:个人征信证明有五次以上不良记录不予审核通过;竞租人在竞租保证金缴纳截止时间之前将竞租保证金缴纳至招租方指定账户,方为有效竞租人。

3、所有竞租人报名以《竞租报名表》的形式报名并参与竞租,有效竞租人仅一家的则以底价中标;有效竞租人二家或二家以上的进入现场竞价环节,现场竞价,价高者得,如最高价出现相同价格的,则相同者重新再次报价;如出现二家及二家以上有效竞租人的报价均达到该铺面限价的,则由招租方择日另行组织评标,要求有效竞租人提供品牌简介及经营方案,并由招租方组成的评标小组进行评分,得分最高的有效竞租人以限价中标。中标人与招租方现场签订《中标确认书》(具体办法以现场宣布为准);

4、缴纳竞租保证金的有效竞租人,需于规定时间参与竞租,未按时到场视为弃权,缴纳的保证金不予退还;

5、中标人发生如下情况,视为恶意竞租,出租方有权没收保证金:

a.未能在规定时间内与招租方签订《租赁合同》的;

b.应标单元,当天竞拍无人应价的或应标价格低于出租方底价的;

c.中标后弃权的;

d.擅自改变经营业态、品牌、中标人名称变更的;

e.未能按时缴清应付款项的;

6、招租方在中标人中标后,现场公布中标人姓名、中标价格、中标业态,并在招租工作完成的次日于现场公示中标信息(中标人、中标业态)五天。 公示五天后如无第三方提出异议,招租方与中标人于一周内签订签订《租赁合同》,同时中标人向招租方付清首期租赁费用和租赁保证金。未中标的竞租人所缴纳的本票招租方于竞租结束后5个工作日内无息退还。

四、竞租流程

1、竞租流程:现场公示、现场报名、资料审核、公开竞租、中标信息公示、签约缴费

2、竞租报名、缴纳竞租保证金截止时间:2021121日下午16:00

3、竞租保证金缴纳方式:银行本票

4、竞租时间、竞租地点:招租方另行通知

5、报名咨询电话:13962195229  卢先生

 

苏州绿原城乡建设有限公司

202117

联系我们

地址:苏州市人民路3158号万融国际大厦

联系电话:0512-80820000 

欢迎微信扫码关注