万融国际大厦租赁招标公告

发布时间:2021-07-02浏览人数:

 

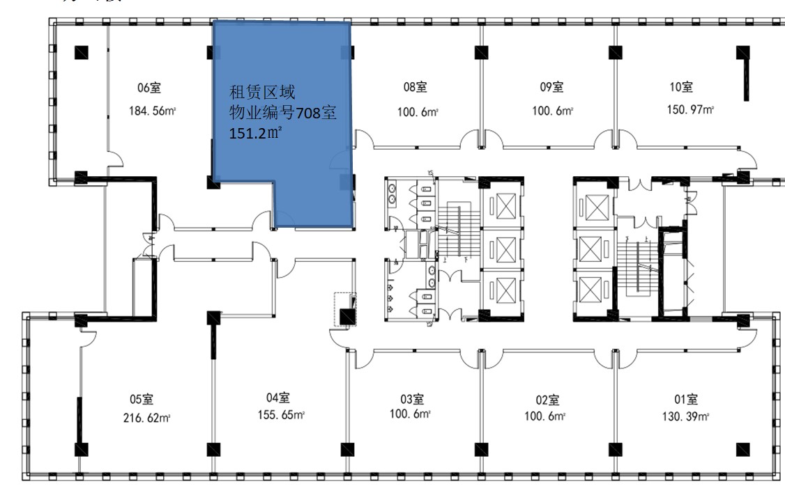
苏州绿原城乡建设有限公司对位于苏州市姑苏区人民路3158号万融国际大厦写字楼607室进行公开竞标招租(详见租赁区域平面图),万融国际607室建筑面积151.2㎡(具体区域招标以现场确认为准)

  万融国际项目招租位置示意图:

 1.jpg

店面号

建筑面积

楼层

经营业态

写字楼607

151.2

六层

不可经营餐饮、零售超市

一、报名条件:

1具有经营相关业态经历并提供相关证明材料,在苏合法注册的独立法人资格的企业或个人;

2企业:注册资金不低于50万元,注册经营范围内包含此次竞标从事业态。财务和经营状况良好,具备履行合同能力;

3、个人

1)人行征信报告

2)竞标人提供身份证原件、复印件,在苏居住证明(本市户口本或临时居住证)。

  二、报名、现场勘查、答疑的方式和时间:

报名、现场勘查、答疑的地点:苏州市姑苏区江宙路132号四楼苏州市农产品发展有限公司;

咨询电话:13962195229  王女士

联系我们

地址:苏州市人民路3158号万融国际大厦

联系电话:0512-80820000 

欢迎微信扫码关注